- 84 m2 construidos
- 3 dormitorios
- 1 baños
- Verificá que el inmueble exista y desconfiá si te dicen que necesitan vender o alquilar con urgencia.
- Solicitá la mayor cantidad posible de información sobre el inmueble, así como fotos y/o videos para comprobar su veracidad.
- Sospechá si el precio te parece demasiado barato como para ser cierto.
- No uses servicios de pago anónimos para pagar, reservar o adelantar dinero sin haber visto el inmueble.















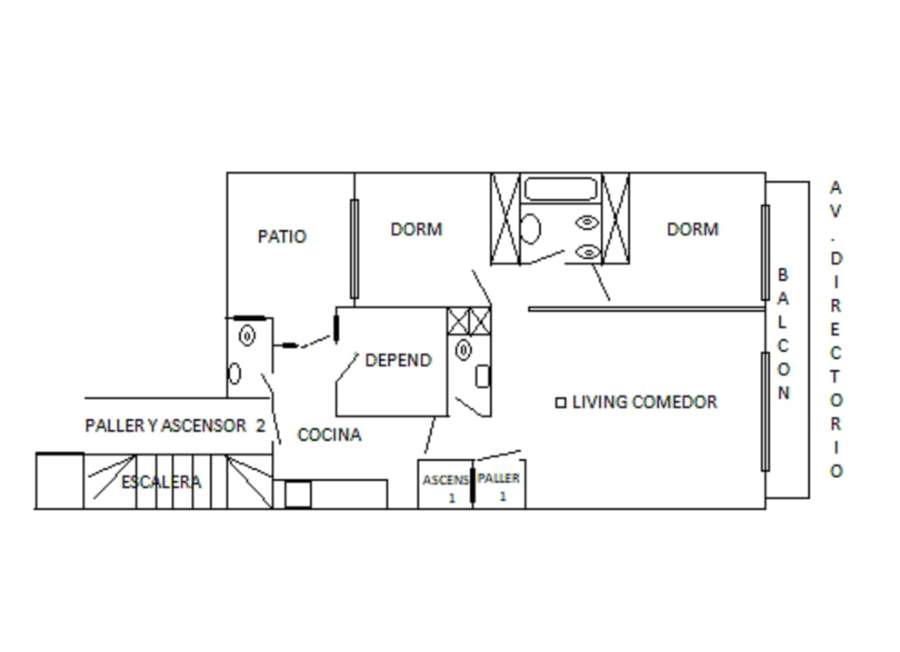
Departamento en Venta en Flores - Dueño directo - Av. Directorio 2400 - 3 dorm - 4 amb - 84 m2 - 92 m2 tot.
Dueño directo, vende (o permuta x 2 amb en la zona) depto. en 1er piso sobre Av. Directorio esq. Rivera Indarte, c/balcón corrido al frente, a 4 cuadras del Subte A, 5 cuadras del tren Sarmiento, y 3 de la plaza de la Misericordia. Excelente y segura ubicación en el barrio de Flores, cercano al centro comercial y rodeado de transporte público. Cuenta con dos amplios dormitorios, dependencia de servicio y living comedor, los cuatro ambientes con placares empotrados y pisos de parquet, recién plastificados. Dormitorios y Living comedor con ventanales y éste último con persiana eléctrica. El dormitorio principal con salida al balcón corrido de 7 m de longitud posee doble cerramiento de vidrio para su insonorización. Cocina en L equipada, con una 2da entrada por escalera y/o ascensor de servicio, y acceso al patio trasero. Cuenta con entrada principal al Living comedor por ascensor a través de Palier privado, y una 2da entrada por la cocina por palier trasero con ascensor de servicio y escalera. Posee espacio guardacoches en garaje con acceso directo a través del Hall del edificio y portón automático. Calefacción central por loza radiante en todo el departamento y Aire acondicionado en los dormitorios. La disposición del departamento permite ventilación cruzada.
La propiedad que estás visualizando está actualmente en venta y es ofrecida directamente por el propietario, lo que significa que no hay intermediarios involucrados en la transacción. Esta oportunidad única te brinda la posibilidad de negociar directamente con el dueño, ¡Aprovecha esta oportunidad para adquirir tu próximo inmueble en de manera directa!
Encuentra más inmuebles similares en nuestra sección de departamentos en venta en Flores dueño directo.
Caracteristicas
Detalles técnicos
| Superficie total | 92 m2 |
|---|---|
| Superficie construida | 84 m2 |
| Ambientes | 4 |
| Dormitorios | 3 |
| Cocheras | 1 |
| Forma de pago | Contado |
| Estado del inmueble | Muy bueno |
| Antiguedad | 20 a 50 Años |
| Cantidad de pisos | 1 planta |
| Amoblado | No |
| Baños | 1 |
Av. Directorio 2400, Flores, Ciudad Autónoma de Buenos Aires
Entorno cercano al inmueble
- Canchas
- Caminos Principales
- Colegios
- Parques
- Estaciones de Bus
- Tiendas
- Ciclovías
- Supermercados
- Centros Comerciales
- Cafeterías
- Restaurants
- Estaciones de Servicio
- Farmacias
- Hospital
Servicios del inmueble
- Agua corriente
- Internet
- Teléfono
- Desagüe cloacal
- Luz
- Gas natural
- Pavimento
- Cable